14-16 Dune Parade, Bushland Beach
House
- 4
- 2
- 2
773 sqm
$ 750,000
ABSOLUTE OCEAN FRONTAGE WITH OUTSTANDING VIEWS
This beautiful 297sqm fully air conditioned family home sits on a large 773sqm block with the Coral Sea behind and a small park to the right meaning the only sound you will be hearing is the noise of the ocean rocking you to sleep at night. With outstanding ocean views from the top level it is the perfect getaway for parents to unwind after a hard day:
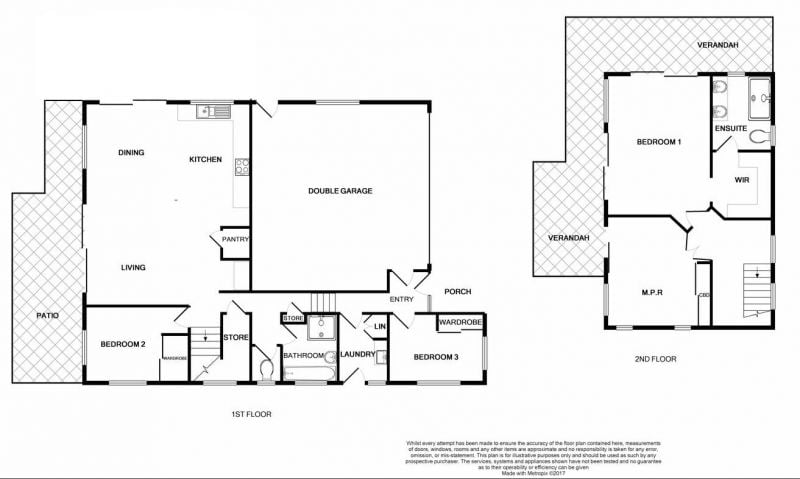
TOP FLOOR:
* Huge king sized carpeted master bedroom with outstanding views opens out to a large wrap around balcony all perfectly aligned to capture the afternoon sea breezes
* Stunning ensuite with stone benchtop to the twin vanity and twin shower
* Bedroom two is also king sized and if not needed as a bedroom would make a great parents lounge up away from the kids. It also has access to the wrap around balcony
GROUND LEVEL:
* Huge open plan living and dining off the kitchen with timber look flooring includes a study nook area and is bathed in ocean breezes through the clever placement of sliding doors and louvres from the patio
* Chef's kitchen features electric appliances, island bench, stone bench tops, floor to ceiling cabinetry, walk in pantry and large plumbed fridge space
* Bedrooms three and four are well separated from each other and both have built in robes
* Striking family bathroom has the shower separate from the bath with a stylish wall hung vanity
* The large 773sqm block has double gate side access for your boat and plenty of room for a large shed and pool.
Now vacant this outstanding property is ready for you to move right in now and enjoy the lifestyle that only absolute ocean front living can provide.
Call the agent now to book an inspection at a time that suits you.
Disclaimer: While all care has been taken to ensure the information provided herein is correct, we do not take responsibility for any inaccuracies and we accept no liability for any errors or exclusions (including but not limited to a property's land size, floor plans and building age). Accordingly all interested parties should make their own enquiries and obtain their own legal advice.
TOP FLOOR:
* Huge king sized carpeted master bedroom with outstanding views opens out to a large wrap around balcony all perfectly aligned to capture the afternoon sea breezes
* Stunning ensuite with stone benchtop to the twin vanity and twin shower
* Bedroom two is also king sized and if not needed as a bedroom would make a great parents lounge up away from the kids. It also has access to the wrap around balcony
GROUND LEVEL:
* Huge open plan living and dining off the kitchen with timber look flooring includes a study nook area and is bathed in ocean breezes through the clever placement of sliding doors and louvres from the patio
* Chef's kitchen features electric appliances, island bench, stone bench tops, floor to ceiling cabinetry, walk in pantry and large plumbed fridge space
* Bedrooms three and four are well separated from each other and both have built in robes
* Striking family bathroom has the shower separate from the bath with a stylish wall hung vanity
* The large 773sqm block has double gate side access for your boat and plenty of room for a large shed and pool.
Now vacant this outstanding property is ready for you to move right in now and enjoy the lifestyle that only absolute ocean front living can provide.
Call the agent now to book an inspection at a time that suits you.
Disclaimer: While all care has been taken to ensure the information provided herein is correct, we do not take responsibility for any inaccuracies and we accept no liability for any errors or exclusions (including but not limited to a property's land size, floor plans and building age). Accordingly all interested parties should make their own enquiries and obtain their own legal advice.
