67 Thirteenth Avenue, Railway Estate
House
- 3
- 1
- 2
809 sqm
$ 595,500
Renovated Queenslander in Peaceful Pocket
Tucked away in a quiet street, this beautifully renovated Queenslander effortlessly blends timeless character with modern comfort. Boasting undeniable street appeal, this home offers an enviable lifestyle just minutes from the city, quality schools, the QCB Stadium and other amenities.
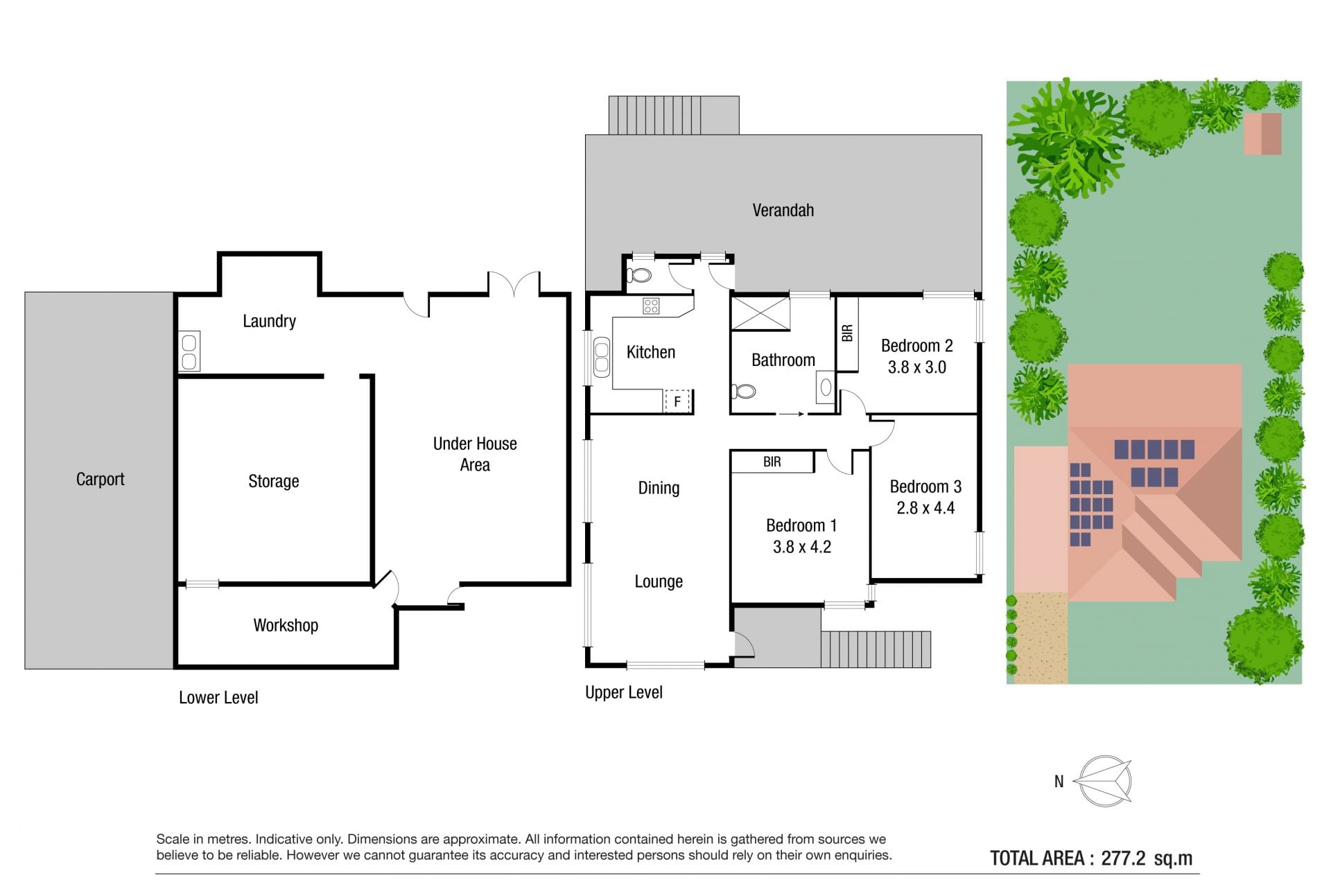
Step inside to discover polished floorboards, fresh paint and an abundance of natural light streaming through classic windows. The heart of the home features a lovely kitchen and a gorgeous bathroom with stylish finishes, while three generous bedrooms provide comfort and space for the whole family.
Step out onto the huge rear entertaining deck and take in the leafy backyard views - perfect for relaxed outdoor living. The fully fenced yard offers plenty of room for kids, pets or even a future pool, with side access ideal for storing a boat or trailer.
- Sought after inner-city location, metres to the park and boat ramp
- Welcoming living and dining area flowing onto the kitchen and outdoor entertaining
- Family kitchen with ample storage, electric oven, double sink and sliding pantry
- Stylish new bathroom with fresh colour scheme and second toilet
- Three spacious bedrooms – two with built-in wardrobes
- Fully air-conditioned with ceiling fans throughout
- Huge private timber deck, perfect for entertaining
- Double carport with side access, fully fenced 809 sqm block with garden shed
- Under house storage with workshop room and laundry
Disclaimer: While all care has been taken to ensure the information provided herein is correct, we do not take responsibility for any inaccuracies and we accept no liability for any errors or exclusions (including but not limited to a property's land size, floor plans and building age). Accordingly all interested parties should make their own enquiries and obtain their own legal advice.
Step inside to discover polished floorboards, fresh paint and an abundance of natural light streaming through classic windows. The heart of the home features a lovely kitchen and a gorgeous bathroom with stylish finishes, while three generous bedrooms provide comfort and space for the whole family.
Step out onto the huge rear entertaining deck and take in the leafy backyard views - perfect for relaxed outdoor living. The fully fenced yard offers plenty of room for kids, pets or even a future pool, with side access ideal for storing a boat or trailer.
- Sought after inner-city location, metres to the park and boat ramp
- Welcoming living and dining area flowing onto the kitchen and outdoor entertaining
- Family kitchen with ample storage, electric oven, double sink and sliding pantry
- Stylish new bathroom with fresh colour scheme and second toilet
- Three spacious bedrooms – two with built-in wardrobes
- Fully air-conditioned with ceiling fans throughout
- Huge private timber deck, perfect for entertaining
- Double carport with side access, fully fenced 809 sqm block with garden shed
- Under house storage with workshop room and laundry
Disclaimer: While all care has been taken to ensure the information provided herein is correct, we do not take responsibility for any inaccuracies and we accept no liability for any errors or exclusions (including but not limited to a property's land size, floor plans and building age). Accordingly all interested parties should make their own enquiries and obtain their own legal advice.
